【売戸建住宅】東近江市政所町
【売戸建住宅】東近江市政所町
政所町の売戸建住宅
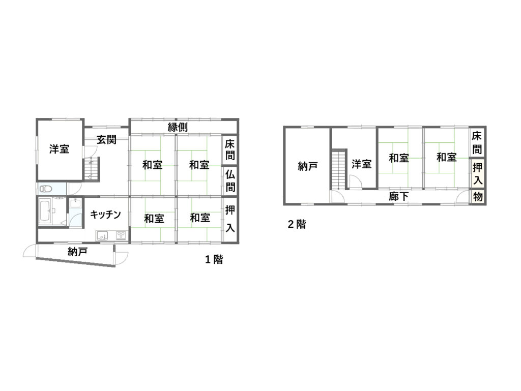
8SKの木造2階建住宅です!
物件概要
| 物件種目 | 売戸建住宅 |
|---|---|
| 交通 | 近江鉄道本線 八日市 バス76分 バス停 ちょこっとバス政所 停歩3分 |
| 土地面積(公簿) | 241.32㎡ |
| 構造・規模 | 木造2階建 |
| 都市計画 | 区域外 |
| 建ぺい率・容積率 | |
| 接道 | |
| 設備 | バス1坪以上,温水洗浄便座,シャワー付洗面化粧台,IHクッキングヒーター,システムキッチン,照明器具,電気,上水道,浄化槽,縁側 |
| 現況 | 空家 |
| 取引態様 |
| 所在地 | 滋賀県東近江市政所町 |
|---|---|
| 販売価格 | 850万円 |
| 延床面積(公簿) | 148.05㎡ |
| 土地権利 | 所有権 |
| 用途地域 | 無指定 |
| 地目 | 宅地 |
| 駐車場 | |
| 築年数 | 築年月:1981年09月 |
| 引き渡し時期 | 相談 |
| その他(備考) |



















